







365-002 bet_约彩365官方下载安装_365705新锐房地产开发有限责任公司开发建设的海北广厦项目,北临海北大街,南依新锐雅园住宅小区,西靠车站北路,东临建设北路,项目总占地面积为37844 m2(56.77亩)。海北广厦项目计划总投资3.5亿元,总建筑面积182418m2,其中地上建筑面积149819m2;地下建筑面积为32598m2。安置回迁户97户,商业回迁为48户,货币补偿共计8户。同时本项目为海勃湾区车站北路棚户区代建回迁安置房屋166户。海北广厦项目被列为2015年海勃湾区保障性安居工程建设项目。
海北广厦将商业、办公、居住、餐饮、会议、文娱和交通等城市生活空间进行组合,从而形成一个多功能、高效率的综合体,为业主的一站式购物休闲提供便利,北面植物园,西面葡萄园形成了阻挡风沙的绿色屏障,也是提升空气质量的净化器。
项目周边配套便利:
1·距365-002 bet_约彩365官方下载安装_365705火车站5分钟路程。
2·距365-002 bet_约彩365官方下载安装_365705机场15分钟路程。
3·紧邻葡萄园景观带,距365-002 bet_约彩365官方下载安装_365705滨河景观带,植物园景观带,市人民广场5分钟路程。
4·周边遍布365-002 bet_约彩365官方下载安装_365705星级酒店。
5·五完小,二中,滨河高中文体中心5分钟内都可到达,文化氛围浓重。
6·紧邻滨河区
7·物业公司由具有多年服务管理经验的365-002 bet_约彩365官方下载安装_365705星元物业服务公司承接服务。
商业配套完善,住宅区独立静谧,住宅楼宇排列方式科学合理,小区内景观资源可共享,各楼宇采光通风佳,绿化率≥60% 。
全部地下停车场,确保爱车安全,同时促成地面最大程度绿化
人车分流,动线明确,确保地面行人安全。
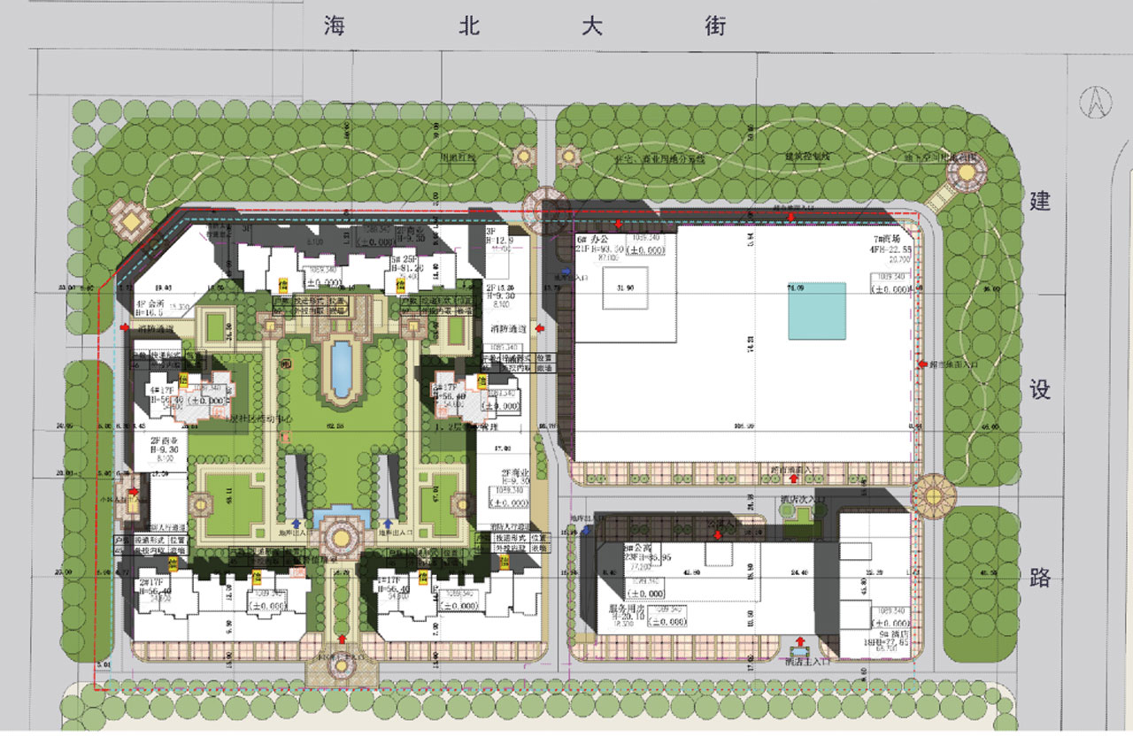
项目概况:海北广厦项目建设内容主要为住宅、公寓、酒店、办公楼、超市、商场、地下车库及配套设施。项目建设规模及内容为:五栋住宅楼其中包括一栋25层、四栋17层及外围2层沿街商铺(共有住户718套);一栋21层办公楼(带1~4层裙楼),1~4层裙楼为商场地下一层为超市;两栋18层公寓楼(带1~4层裙楼),并设有地下停车场。
现住宅部分1#、2#、3#、4#楼已封顶,地上均17层;5#楼共25层,已建至17层;6#、、7#楼公寓(18层)均已封顶;写字楼21层,已建至6层;商场部分共4层,已建至地上一层。整体工程已于2015年4月15日开工建设,2016年4月10日复工建设,预计于2016年12月31日全部交工(除5号楼)。该项目五证齐全,预售房许可证已于2015年11月办理并取得。